
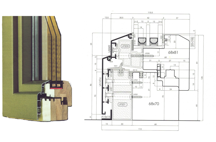
La Finestra Passiva a Risparmio Energetico è realizzata in legno/alluminio - rovere lamellare ed è accoppiata con profilo in poliestere ad alto potere termoisolante e poi rivestita all'esterno con profilo in alluminio. Il sistema di costruzione della finestra passiva in legno/alluminio utilizzato dalla Alberti f.lli snc è caratterizzato da uno spessore telaio-anta di 128 mm, Vetro B camera 4/18/4/20/4 emissivo ed ha ottenuto un elevato valore di isolamento termico UW 0,72 (m 2k), da consentire l'utilizzo ideale in una casa clima; un prodotto idoneo per case passive a basso consumo energetico.
Condividi :